Trilocale in vendita

Pavia, Via bergamo - Vallone
€ 135.000
3 locali 3 locali
93 Mq 93 Mq
1 bagno 1 bagno

Trilocale in vendita

Pavia, Via bergamo - Vallone

Descrizione annuncio

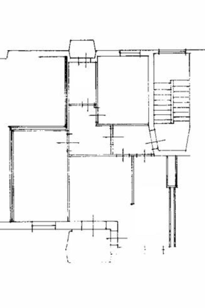
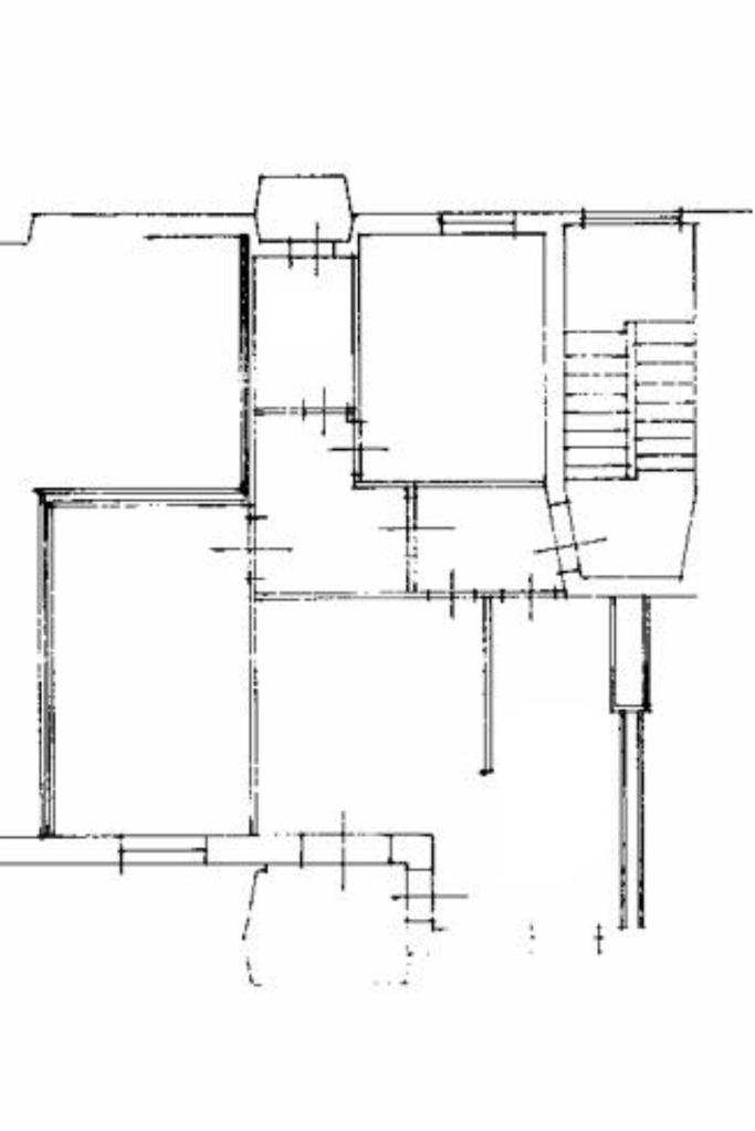
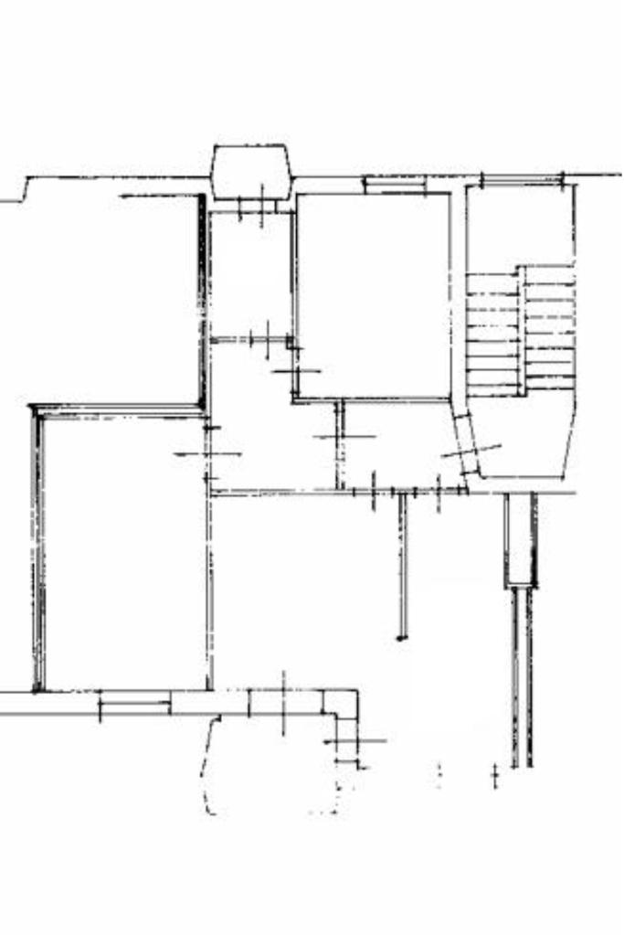
Via Bergamo: L’unità immobiliare è costituita da un appartamento di tre locali, posto al secondo piano di una palazzina residenziale edificata negli anni sessanta, recentemente interessata da interventi di riqualificazione energetica eseguiti nell’ambito del Superbonus 110%.
Tali lavori hanno comportato un significativo miglioramento dell’efficienza energetica dell’edificio, con la realizzazione del cappotto termico sulle facciate esterne, la sostituzione integrale degli infissi con nuovi serramenti a taglio termico, l’installazione di pannelli fotovoltaici destinati all’alimentazione delle parti comuni, nonché la sostituzione della caldaia condominiale con un modello a condensazione di ultima generazione. È inoltre prevista, a breve, la realizzazione dell’ascensore, che incrementerà ulteriormente il comfort e l’accessibilità dell’immobile.
L’appartamento è corredato da una cantina pertinenziale ubicata al piano terra, comoda per l’utilizzo come locale di deposito o spazio accessorio.

L’ingresso, protetto da porta blindata, si apre su un disimpegno che distribuisce in modo funzionale i diversi ambienti della casa. Subito sulla sinistra si trova la cucina, sviluppata in lunghezza e completa di zona pranzo; da questa si accede direttamente al soggiorno principale, raggiungibile anche dal disimpegno d’ingresso. Gli ambienti della zona giorno risultano ben collegati e godono di buona luminosità naturale, grazie alla presenza di un balcone che affaccia sul fronte principale del fabbricato, garantendo aerazione e piacevole vivibilità.
La zona notte comprende due ampie camere matrimoniali, entrambe caratterizzate da buone proporzioni e da un ottimo rapporto aeroilluminante. Il bagno, finestrato e di dimensioni generose, è dotato di vasca tradizionale e dispone di un balconcino di servizio, utile per l’aerazione e la gestione quotidiana.

Pur beneficiando delle opere condominiali di riqualificazione, l’appartamento mantiene le finiture e gli impianti originari dell’epoca costruttiva, senza interventi di ristrutturazione interna o sostituzione delle dotazioni funzionali. Si presenta quindi in condizioni mediamente conservate, ma con potenzialità di valorizzazione tramite eventuali lavori di ammodernamento interno volti ad adeguarlo agli standard abitativi attuali.

Completano la proprietà una cantina di comoda metratura al piano terra, facilmente accessibile dalle parti comuni, ideale come spazio accessorio o di deposito.

Mostra tutto

Nelle vicinanze

Trasporto pubblico Trasporto pubblico
Pastrengo
Pastrengo
80 m
PASTRENGO Brescia
PASTRENGO Brescia
140 m
stazione di Pavia Porta Garibaldi
stazione di Pavia Porta Garibaldi
1,7 Km
Ricariche auto elettriche Ricariche auto elettriche
Eneldrive Punto Enel di Pavia
2,8 Km
Scuole Scuole
Scuola Primaria Vallone
240 m
Il Girotondo
410 m
Istituto Comprensivo Statale di via Angelini
450 m
Angelini Sede Centrale
460 m
Massacra
560 m
Farmacia Farmacia
Maestà
520 m
Moderna
700 m
Santo Spirito
1,4 Km
San Pietro
1,4 Km
Vitamin Store
1,8 Km
Ospedali Ospedali
Istituto di riabilitazione e di cura Santa Margherita
1,1 Km
Istituto di Cura Città di Pavia
1,4 Km
Istituto Clinico Scientifico "Salvatore Maugeri" di via Boezio
2,8 Km
Poliambulatori Policlinico San Matteo
2,8 Km
Laboratorio Analisi Mediche San Giorgio
2,8 Km
Supermercati Supermercati
COOP
840 m
Supermercato Torretta
1,3 Km
Iper Di
1,4 Km
IN's
1,7 Km
DiPerDì
1,8 Km
Negozi Negozi
Riso Scotti
1,2 Km
Medagliani
1,3 Km
IN's
1,3 Km
Picard
1,4 Km
Gulliver
1,5 Km
Bar Bar
Bar Sole
290 m
Bar Centro
1,7 Km
White House
1,7 Km
Stop 'N' Go
1,8 Km
Non Solo Caffè
1,8 Km
Ristoranti Ristoranti
Playtime
1,4 Km
Pizzeria "La Lampara"
1,5 Km
Hanami
1,5 Km
Pizza Hot
1,6 Km
Old Wild West
1,7 Km
Mostra tutto

Caratteristiche

Rif.:
61134442
Piano:
2 di 4 con ascensore (Piano medio)
Balconi:
2
Camere da letto:
2
Arredamento:
Assente
Condizionamento:
Autonomo
Mostra tutto
Prezzo Prezzo
€ 135.000
Rata mutuo Rata mutuo
€ 620 / mese
Spese annue Spese annue
€ 3.000
Proponi il tuo prezzoProponi il tuo prezzo

Classe Energetica

C
C
C
C
C
C
C
C
C
EP globale non rinnovabile:
135.50 kW h/m² anno
EP invernale del fabbricato:
EP estiva del fabbricato:
Anno di costruzione:
1968
Riscaldamento:
Centralizzato
Tipo impianto:
A radiatori
Tipo alimentazione:
Metano

Ti interessa visionare l'immobile?

Fissa un appuntamento  Fissa un appuntamento

Richiedi informazioni

* Questi campi sono obbligatori

Calcola il tuo mutuo

Semplice e senza impegno
Anticipo

( % )
Mutuo

( % )

pochi semplici passi

inserisci i tuoi dati
Questionario completato
Grazie per aver richiesto un appuntamento senza impegno con un nostro Consulente del Credito e Assicurativo.

Hai inserito correttamente tutti i dati necessari e a breve riceverai una e-mail con un link da convalidare per inviare i tuoi dati.
Affiliato
Studio Vallone Sas
P.zza Crosione, 3 27100 Pavia (PV)

Il nostro staff


  • Giuseppe Ranzini
    Affiliato

  • Albin Mario Rizzi
    Responsabile

  • Mila Veronica Baldini
    Collaboratrice

  • Ottavio Scatigno
    Collaboratore
P.zza Crosione, 3 27100 Pavia (PV)
Zona: Campo Coni-Crosione-Vallone-Ca Della Terra
Mostra su mappa
Orari: lunedì-venerdì 9.00-12.30 / 14.30-19.00; sabato 9.00-12.30
Affiliato
Studio Vallone Sas
P.zza Crosione, 3 27100 Pavia (PV)

2025 Tecnocasa Franchising S.p.A. - P. IVA 08365160152 - Via Monte Bianco 60/A 20089 Rozzano (MI). Ogni agenzia ha un proprio titolare ed è autonoma. Privacy policy | Policy utilizzo | Cookie policy