Trilocale in vendita

Copiano, Via don marchesi
€ 130.000
3 locali 3 locali
120 Mq 120 Mq
1 bagno 1 bagno

Trilocale in vendita

Copiano, Via don marchesi

Descrizione annuncio

Copiano (PV)

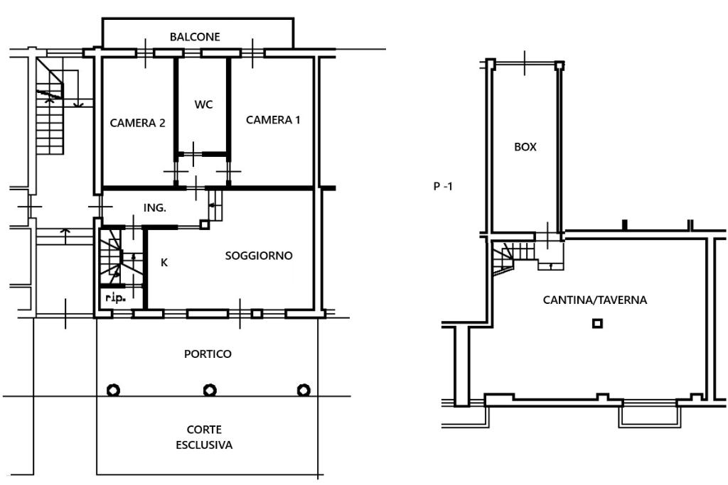
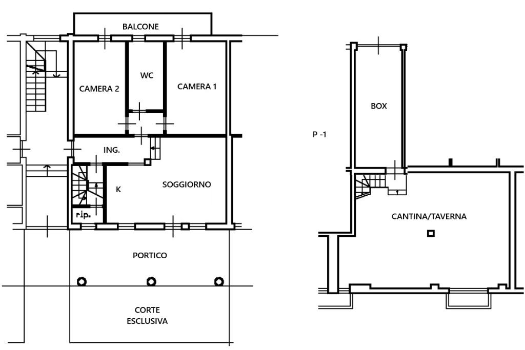
In condominio orizzontale del 2004, situato al piano terra di una scala di sole 4 unità, proponiamo ampio trilocale termoautonomo con area esterna privata ed ampia cantina/taverna.

L’immobile si apre su un disimpegno che conduce alla zona giorno, composta da soggiorno con angolo cottura e accesso al portico coperto con cortile esclusivo.

La zona notte, ben separata, comprende una camera matrimoniale, una camera doppia e un bagno con vasca idromassaggio. Entrambe le camere si affacciano su un ampio balcone esterno.

Sempre dall’ingresso dell’abitazione, tramite scala interna, si raggiungono il ripostiglio e la spaziosa cantina, ideale come taverna, dotata di accesso diretto all’autorimessa.

L’immobile si presenta in ottimo stato di conservazione: infissi con doppi vetri, climatizzatore installato e condizioni generali che lo rendono abitabile da subito, senza necessità di interventi edilizi.

La disponibilità è prevista dall’estate 2026, previo accordo con la proprietà.

Mostra tutto

Nelle vicinanze

Scuole Scuole
Scuole
2,3 Km
Farmacia Farmacia
Farmacia
1,7 Km
Farmacia Marinetti Carlamaria
2,2 Km
Supermercati Supermercati
MD Supermercato
2,8 Km
Bar Bar
Bar Sport di Amato Giovanni
240 m
Bar Doc di Germano
2,0 Km
Bar Bagarotti
2,1 Km
Ristoranti Ristoranti
Charleston Ristorante Pizzeria
2,7 Km
Mostra tutto

Caratteristiche

Rif.:
61117408
Piano:
1 di 2 (Piano terra con giardino)
Box:
1
Balconi:
1
Camere da letto:
2
Arredamento:
Assente
Mostra tutto
Prezzo Prezzo
€ 130.000
Rata mutuo Rata mutuo
€ 597 / mese
Spese annue Spese annue
€ 700
Proponi il tuo prezzoProponi il tuo prezzo

Altre caratteristiche

Classe Energetica

E
E
E
E
E
E
E
E
E
EP globale non rinnovabile:
222.87 kW h/m² anno
EP globale rinnovabile:
2.55 kW h/m² anno
EP invernale del fabbricato:
EP estiva del fabbricato:
Anno di costruzione:
2004
Riscaldamento:
Autonomo
Tipo impianto:
A radiatori
Tipo alimentazione:
Metano

Ti interessa visionare l'immobile?

Fissa un appuntamento  Fissa un appuntamento

Richiedi informazioni

* Questi campi sono obbligatori

Calcola il tuo mutuo

Semplice e senza impegno
Anticipo

( % )
Mutuo

( % )

pochi semplici passi

inserisci i tuoi dati
Questionario completato
Grazie per aver richiesto un appuntamento senza impegno con un nostro Consulente del Credito e Assicurativo.

Hai inserito correttamente tutti i dati necessari e a breve riceverai una e-mail con un link da convalidare per inviare i tuoi dati.
Affiliato
Studio Vallone Sas
P.zza Crosione, 3 27100 Pavia (PV)

Il nostro staff


  • Giuseppe Ranzini
    Affiliato

  • Albin Mario Rizzi
    Responsabile

  • Mila Veronica Baldini
    Collaboratrice

  • Ottavio Scatigno
    Collaboratore
P.zza Crosione, 3 27100 Pavia (PV)
Zona: Campo Coni-Crosione-Vallone-Ca Della Terra
Mostra su mappa
Orari: lunedì-venerdì 9.00-12.30 / 14.30-19.00; sabato 9.00-12.30
Affiliato
Studio Vallone Sas
P.zza Crosione, 3 27100 Pavia (PV)

2025 Tecnocasa Franchising S.p.A. - P. IVA 08365160152 - Via Monte Bianco 60/A 20089 Rozzano (MI). Ogni agenzia ha un proprio titolare ed è autonoma. Privacy policy | Policy utilizzo | Cookie policy